混凝土車輛提升機(jī)
MB型電動葫蘆半門式起重機(jī)
YLH型冶金電動葫蘆橋式起重機(jī)
YLD型冶金電動單梁起重機(jī)
MHE型雙起升電動單梁門式起重機(jī)(桁架式)
軌道式集裝箱門式起重機(jī)(吊具旋轉(zhuǎn))
MHE型雙起升電動單梁門式起重機(jī)(鋼板箱梁式)
BMH型電動葫蘆半門式起重機(jī)(鋼板箱梁式)
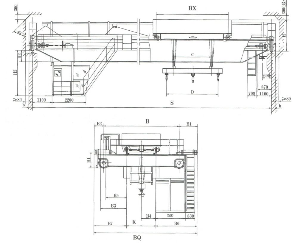
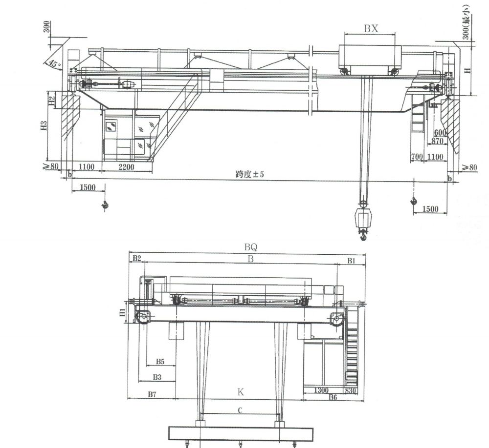
夾鉗橋式起重機(jī)
超長電磁掛梁橋式起重機(jī)
QZ型垃圾抓斗橋式起重機(jī)
XG型電廠用電動懸掛過軌起重機(jī)
LDE型電動單梁起重機(jī)
LD型電動單梁起重機(jī)(16~30噸)
LD型電動單梁起重機(jī)(1~10噸)
上旋轉(zhuǎn)伸縮掛梁電磁橋式起重機(jī)
下旋轉(zhuǎn)伸縮掛梁電磁橋式起重機(jī)
QCL型電磁掛梁橋式起重機(jī)
MHZ型電動單梁抓斗門式起重機(jī)
QG型掛梁橋式起重機(jī)(平行主梁方向)
QG型掛梁橋式起重機(jī)(垂直主梁方向)
QL型旋轉(zhuǎn)電磁掛梁橋式起重機(jī)
LDP型電動單梁起重機(jī)
多支點(diǎn)懸掛起重機(jī)
QD型吊鉤橋式起重機(jī)(500/100~800/150噸)